Sixteen Canterbury home designs named for the Southern Alps. Sun-led, site-responsive, and delivered by one integrated design-and-build team.
Solstice Homes is the residential brand of Hamilton Projects. Every plan in the collection is drawn in Canterbury, for Canterbury — north-facing living, warm thermal performance, practical layouts, and orientation that makes the most of the sun from the day the keys go in the door.
The sixteen plans are named for peaks in the Southern Alps — from Starter homes named for the foothills and front ranges (Hutt, Somers, Torlesse) to Premium designs named for the great mountains behind (Cook, Aspiring, Tutoko, Hicks, Dampier).
Behind every Solstice home is the full Hamilton Projects team: architecture, structural and civil engineering, project management, and construction. One point of contact. One accountable team. One process from section to handover.



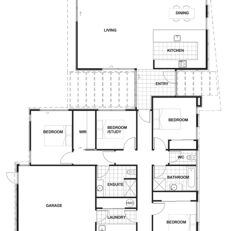
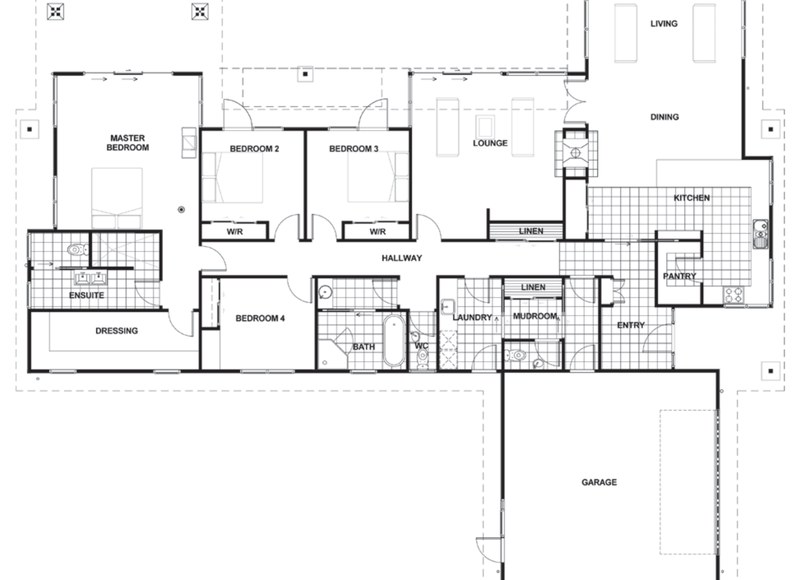
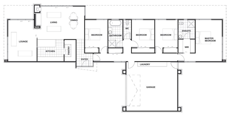
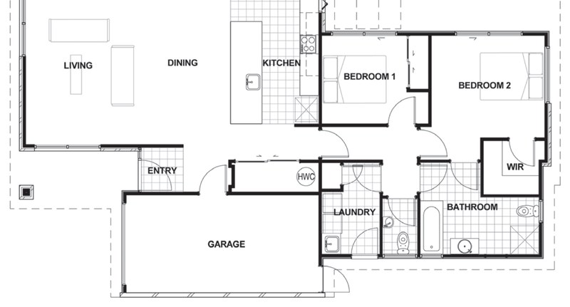
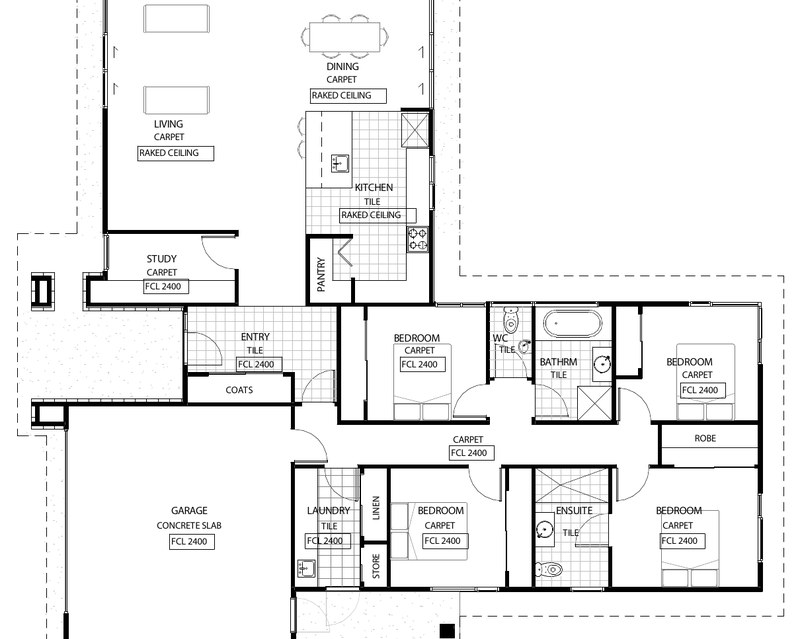
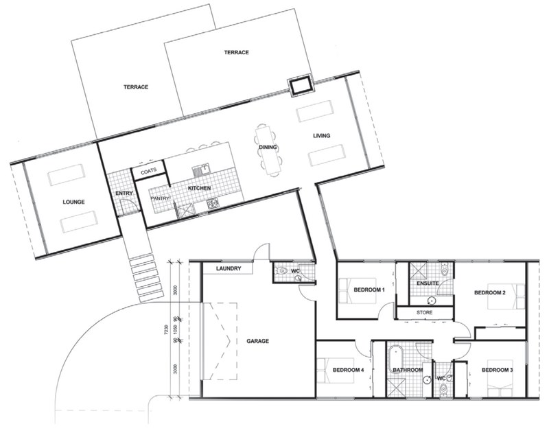
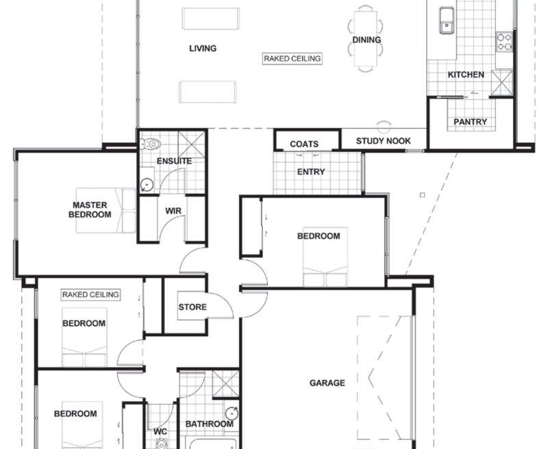
Every plan can be mirrored, adapted, or extended to suit your section. Click a plan to see the full floor plan and specs.
Architecture, engineering, and construction under Hamilton Projects. No passing the baton between three firms. No finger-pointing when something needs resolving.
40+ years of Canterbury experience across 250+ projects — including seismic-aware foundations, site-responsive design, and cold-climate performance.
Plans are developed, costed, and contracted as a fixed package. Variations only where you choose an upgrade. Open-book on the items that actually move.
Send us your section address and the plan you like. We'll come back with a site-specific concept and an indicative build price within the week.
Start an enquiry—